Skip to main content

Independent Living Floor Plans

Our independent living floor plans are designed to provide comfort, convenience, and the freedom of maintenance-free living. Each home offers a spacious layout with thoughtful features that support an active and independent lifestyle. Residents can enjoy the privacy of their own home while still benefiting from the welcoming atmosphere and amenities of our senior living community in Lebanon, TN. Explore the available floor plans below to find the option that best fits your lifestyle and needs.


Pricing

Explore our thoughtfully designed homes, offering a range of layouts and premium features to fit your lifestyle.

Floor Plan #1 — Two Bedroom Homes
Starting at $280,000

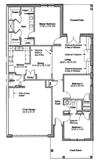
Floor Plan #2 — Three Bedroom Homes
Cadet Design (Back Porch)
Starting at $300,000

Floor Plan #3 — Three Bedroom Homes
Corporal Design (Screened-In Back Porch)
Starting at $310,000

Floor Plan #4 — Three Bedroom Homes
Commandant Design (Deluxe Sunroom)
Starting at $330,000

Floor Plan #5 — Three Bedroom Homes
Castle Design (Built-In Sunroom)
Starting at $350,000

Monthly Maintenance Fee
$275 per month

Lets Talk